
1. Disconnect power supply before making wiring connections to prevent electrical shock
and equipment damage.
2. All wiring must comply with applicable codes and ordinances.
3. When wiring is completed, check all components by running system through its entire
heating cycle.
4. Check vent pipe system for leakage. All vent system leaks must be sealed prior to the
installation of the Draft Inducer.
5. Flue gas temperature must not exceed 575o F at Draft Inducer inlet.
MOTOR KIT INSTALLATION INSTRUCTIONS
1. To remove defective motor from unit, loosen set screw(s) on Draft Inducer wheel hub.
2. Loosen bolts which attach motor to motor mount. Slide shaft extension out of wheel and
remove defective motor from unit. NOTE: USE CARE SO FASTNERS ARE NOT LOST.
3Loosen set screw(s) which attach shaft extension to motor shaft. Remove shaft extension.
4. Insert shaft extension onto new motor shaft. Secure shaft extension by tightening set screw(s).
5. To ensure proper performance and extended bearing life of the motor, inspect wheel and clean if necessary. Refer to the
installation instructions of your unit for proper maintenance procedures.
6. Position motor onto motor mount, being sure motor shaft (with shaft extension) is fitted into Draft Inducer wheel.
7. Firmly fasten motor to motor mount with wrench, using proper bolts, washers and nuts removed in step 2.
8. Secure Draft Inducer wheel by tightening set screw(s) onto shaft extension. Spin the wheel by hand to ensure proper
alignment and equal blade clearance on both housing sides.
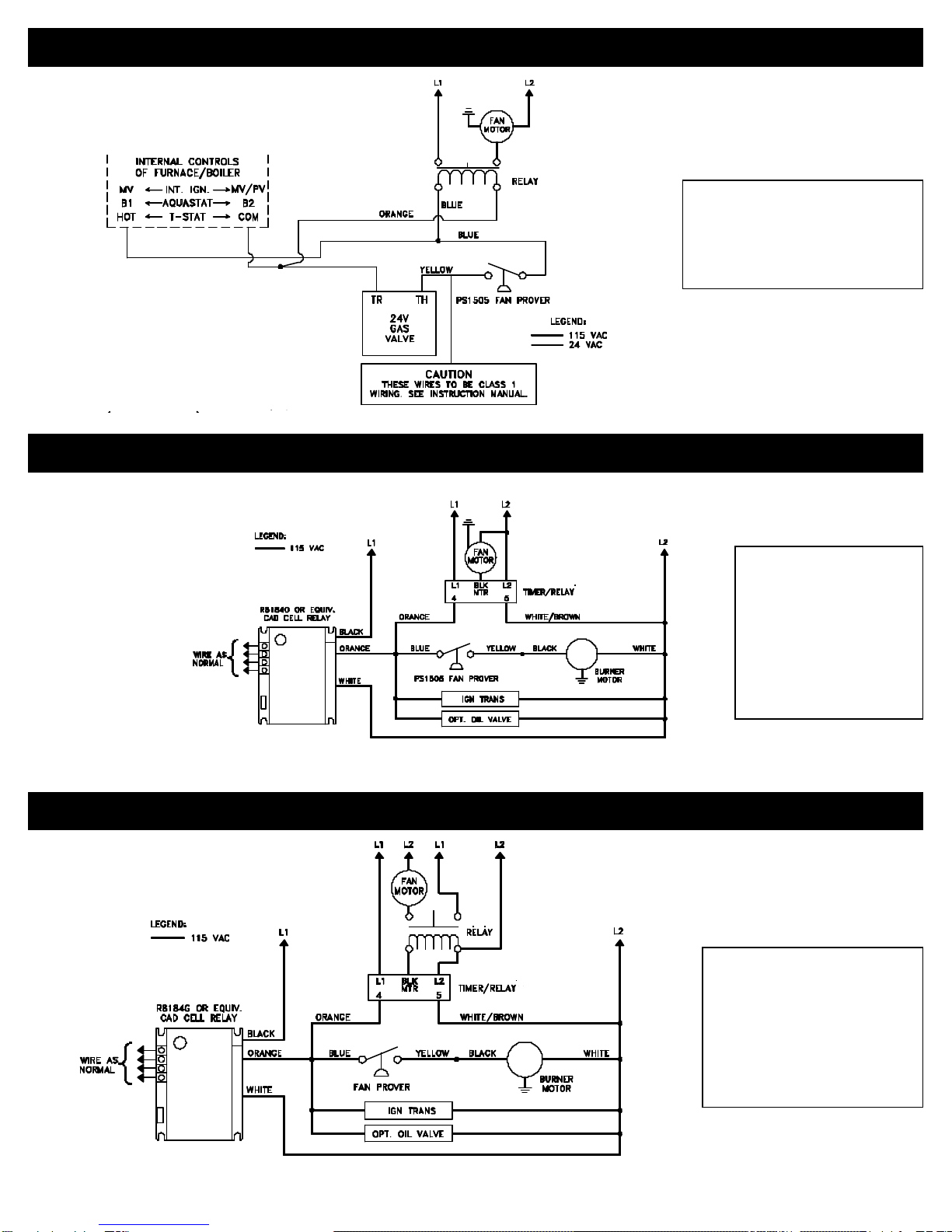
9. Wire Draft Inducer according to appropriate diagram on back. If appropriate circuit does not appear, consult Tjernlund
Products, Inc. at 800-255-4208. UNIT MUST BE GROUNDED! All wiring must be done in accordance with the NEC and
applicable codes. The wiring from the appliance should be protected by overcurrent protection(fuses or circuit breakers) rated
15 amperes or less, as applicable for 14 AWG conductors. EXTREME CAUTION MUST BE EXERCISED TO ENSURE THAT
WIRING DOES NOT COME INTO CONTACT WITH ANY HEAT SOURCE.
10. Check heater and Draft Inducer operation. Vari-Draft control on Draft Inducer should be adjusted so that there is no spillage at
draft diverter, hood or barometric.
SERVICE
Specific instructions cannot be made concerning frequency of lubrication. Usually, oiling every three months during heating sea-
son should be sufficient. NO MORE THAN 3DROPS OFS.A.E. 20 OIL SHOULD BE USED. Oil holes or lances are provided at
front and rear faces of motor.
MODEL I, IL, XL REPLACEMENT MOTOR KIT
TJERNLUND PRODUCTS, INC.
1601 Ninth Street • White Bear Lake, MN 55110-6794
PHONE (800) 255-4208 • (651) 426-2993 • FAX (651) 426-9547
Visit our web site • www.tjernlund.com