
TABLE OF CONTENTS
PAGE(S)
HS-3,4,5 DESCRIPTION ............................................................................................................................................ 1
SPECIFICATIONS ......................................................................................................................................................... 1
HS-3,4,5 SIZING & SELECTION................................................................................................................................ 1-2
RESTRICTIONS.......................................................................................................................................................... 2-3
INSTALLER CAUTIONS ............................................................................................................................................... 3
VENT HOOD LOCATION ............................................................................................................................................. 3
POWER VENTER MOUNTING .................................................................................................................................... 4
VENT PIPE INSTALLATION ..........................................................................................................................................4
FAN PROVING SWITCH INSTALLATION .................................................................................................................... 5
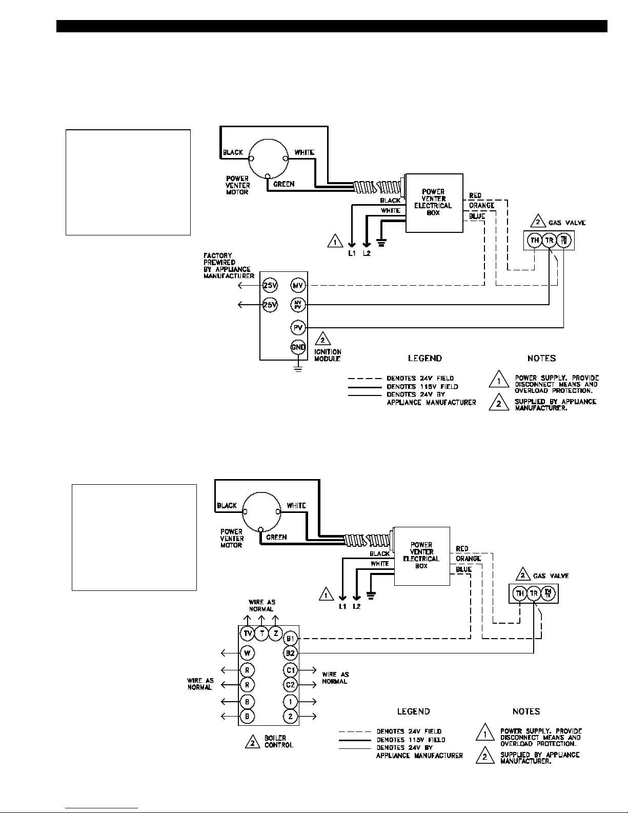
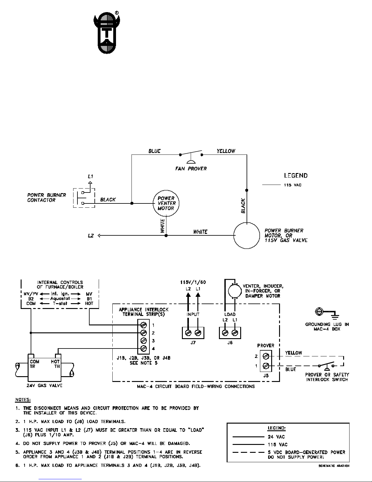
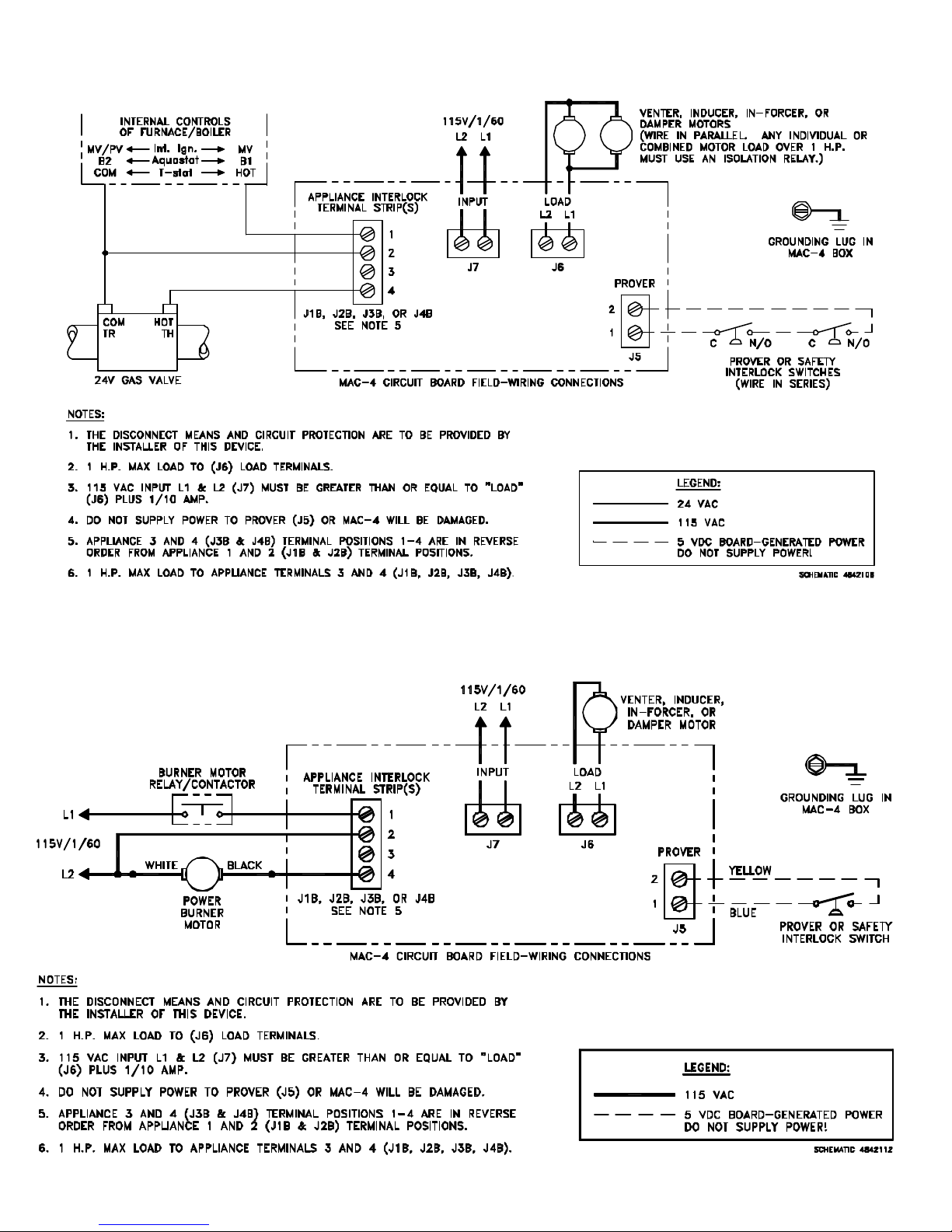
WIRING .......................................................................................................................................................................5-9
SPECIFICATIONS ........................................................................................................................................... 5
WIRING WITH SINGLE APPLIANCE........................................................................................................... 6-7
WIRING WITH MULTIPLE APPLIANCES & MAC-3 CONTROLLER .......................................................... 8-9
OPERATION SEQUENCE ............................................................................................................................ 10
DRAFT ADJUSTMENT ............................................................................................................................................... 10
SAFETY INTERLOCK ..................................................................................................................................................10
MAINTENANCE .......................................................................................................................................................... 10
HOW TO OBTAIN SERVICE & LIMITED WARRANTY ..........................................................................................10-11
REPLACEMENT PARTS ............................................................................................................................................. 11
Tjernlund Products welcomes your comments and questions. Call us at 800-255-4208, Fax 651-426-9547 or write to:
Customer Service, Tjernlund Products, Inc., 1601 Ninth Street, White Bear Lake, MN 55110-6794.
DESCRIPTION
The Tjernlund Power Venter models HS-3, HS-4 and HS-5 are designed to Side Wall or Vertically vent Natural and LP Gas
appliances. All models are supplied with a Fan Proving Switch which will disable the gas valve if a venting malfunction should occur.
SPECIFICATIONS
SIZING
The installer must verify that the Power Venter is sized properly using the selection table on page 2. The installer may reduce the
vent pipe diameter to the size shown in the selection table immediately after the draft hood, draft diverter or barometric draft control.
The vent pipe length shown includes all vent pipe before and after the Power Venter. To calculate the equivalent vent pipe length,
add the straight vent pipe plus 10 feet for every 90 degree elbow and 5 feet for every 45 degree elbow.
If venting multiple appliances with one Power Venter, the total combined BTU/hr. input of all appliances must be added together to
size the Power Venter.
IMPORTANT: Elbows placed directly after discharge on Power Venter may cause erratic operation of Fan Prover. If elbows are
necessary on discharge, allow for a straight section of pipe 3 times the vent diameter being used before installing an elbow.
1