
Item # __________________________
C.S.I. Section 11420
VULCAN-HART COMPANY, P.O. BOX 696, LOUISVILLE, KY 40201, TEL. 1-800-814-2028
502-778-2791 QUOTE & ORDER FAX: 1-800-444-0602
A2780
ISO9001
Vulcan-Hart Co.
F-32439 (10-03)
SPECIFICATIONS
Single compartment electric connectionless steamer, Vulcan-
Hart Model No. VPX ___. 304 stainless steel exterior. Stainless
steel cooking compartment. Generator pan is 11 gauge stainless
steel with stamped water level line. Efficient steam generating
system requires no water or drain connection. Solid sheathed
tubular elements embedded in 1" thick cast aluminum sealed to
pan bottom with thermal transfer compound for even heat distri-
bution. Controls include three position control switch (timed
cooking / Off / constant cooking). 60 minute timer. Heavy duty
"slammable" door and latch mechanism. 4" adjustable legs.
Power required 208 or 240 volt, 60 Hz, 1 or 3 phase. Phase is
field convertible.
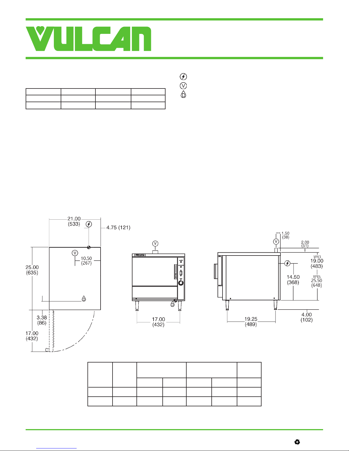
Exterior dimensions:
VPX3: 21"w x 25"d x 25"h.
VPX5: 21"w x 25"d x 311/2"h.
U L listed. Classified by U L to NSF std. #4. Meets ENERGY
STAR®performance levels.
VPX SERIES
ELECTRIC COUNTER CONNECTIONLESS STEAMER
MODELS: VPX Series Electric Counter Connectionless Steamer
■■VPX3 3 pan capacity, 9 KW input.
■■VPX5 5 pan capacity, 15 KW input.
STANDARD FEATURES
■304 series stainless steel exterior.
■Stainless steel cooking compartment.
■Generator pan is 11 gauge stainless steel with stamped
water level line.
■Efficient steam generating system, requires no water or drain
connection.
■Solid sheathed tubular elements (9 KW)(15 KW) embedded
in 1" thick cast aluminum sealed to pan bottom with thermal
transfer compound for even heat distribution.
■Controls include three position control switch (timed cooking /
Off / constant cooking). 60 minute timer.
■Heavy duty "slammable door" and latch mechanism.
■4" adjustable legs.
■Power required 208 or 240 volt, 60 Hz, 1 or 3 phase. Phase
is field convertible.
■One year limited parts and labor warranty.
OPTIONS
■■480 volt, 60 Hz, 3 phase power supply, includes step down
transformer.
■■Second year extended limited parts and labor warranty.
ACCESSORIES
■■Stainless steel pans:
12" x 20" x 1" (solid)(perforated). Qty._____.
12" x 20" x 21/2" (solid)(perforated). Qty._____.
12" x 20" x 4" (solid)(perforated). Qty._____.
■■Stainless steel pan cover. Qty._____.
■■28" open leg stand with 24" x 28"h pan slides.
■■34" open leg stand with 24" x 28"h pan slides.
■■Set of two universal pan slides.
■■Stainless steel stand to stack two units.
■■Removable sliding shelf. Qty._____.