
7
In the United States:
1. State and local codes.
2. National Fuel Gas Code, ANSI-Z233.1 (latest
edition). Copies may be obtained from The
American Gas Assoc., Inc., 1515 Wilson Blvd.,
Arlington, VA 22209.
3. National Electrical Code, ANSI/NFPA No. 70 (latest
edition). Copies may be obtained from The
National Fire Protection Assoc., Batterymarch Park,
Quincy, MA 02269.
In Canada:
1. Local codes.
2. CAN/CGA-B149.1 Installation for Natural Gas
Burning Appliances and Equipment (latest edition).
3. CAN/CGA-B149.2 Installation for Propane Burning
Appliances and Equipment (latest edition). Copies
may be obtained from The Canadian Gas Assoc.,
55 Scarsdale Road, Don Mills, Ontario, Canada
M3B 2R3.
4. The Canadian Electrical Code, Part 1, C22.1 (latest
edition). Copies may be obtained from the
Canadian Standards Assoc., 178 Rexdale Blvd.,
Rexdale, Ontario, Canada M9W 1R3.
LEVELING AND ANCHORING
Using a spirit level, adjust the feet to level the steamer
left-to-right and front-to-back. Steamers should be
elevated in the front just enough (about 1/16" to 1/8") to
give proper drainage. To do this, rotate rear leg
adjusting nut by 1 to 11⁄2turns clockwise after leveling.
(Check by pouring a little water in the compartment; all
the water should drain.)
The rear feet have holes in the flanges for anchor bolts.
DIRECT STEAM COOKERS (STEAMERS WITHOUT
GENERATORS) MUST BE ANCHORED TO THE
FLOOR.
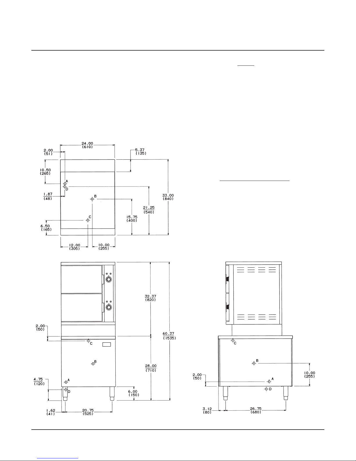
SERVICE CONNECTIONS (See Fig’s. 2-12)
STEAM CONNECTIONS
Provide dry steam to the inlets. If the steam is heavy
with condensate, install a ball float trap before the
pressure regulator valve. To ensure rapid heat-up of
heavy cold loads, the steam supply line must be sized
to maintain pressure and flow as follows:
Direct Connected Steamers (Fig’s. 2-4)
Supply steam at a pressure of 10-12 psi and at a
minimum flow rate of 50 lb. per hour per compartment.
Apressure reducing valve is furnished andset at 10 psig.
Additional steam kettles and kettle modules can
be interconnected to the steamer. Consult Vulcan-Hart
for recommendations.
Regenerating (Steam Coil) Generators (Fig’s. 5 & 6)
The steam supply to the steam coils must be 15 psi at
a minimum flow rate of 125 lb. per hour to the coil.
GAS CONNECTIONS (Fig’s. 7, 8 & 9)
All gas supply connections and any pipe joint
compound used must be resistant to the action of
propane gases.
Connect gas supply to the gas cabinet base generator
using 3⁄4” pipe. Make sure the pipes are clean and free
of obstructions.
Codes require that a gas shutoff valve be installed in
the gas line ahead of the steam generator.
This gas cabinet base generator is equipped with fixed
orifices for use with natural or propane gas and no
adjustment is necessary.
The gas line must be capable of delivering gas to the
generator without excessive pressure drop at the rate
specified on the rating plate. The generator is equipped
with a factory preset pressure regulator. Natural gas
pressure regulators are preset for 3.5" W.C. (Water
Column) for natural gas. Propane gas pressure
regulators are preset for 10" W.C. No further adjustment
should be required.
WARNING: PRIOR TO LIGHTING, CHECK ALL
JOINTS IN THE GAS SUPPLY LINE FOR LEAKS.
USE SOAP AND WATER SOLUTION. DO NOT USE
AN OPEN FLAME.
After piping has been checked for leaks, all piping
receiving gas should be fully purged to remove air.